Строительство продажа жилой коммерческой недвижимости 

+ 7 4932 34-34-98

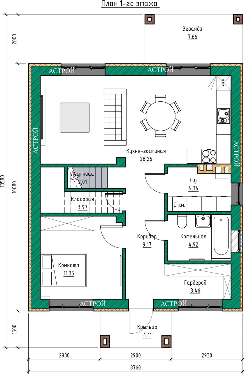
Проект дома АС-142 Площадь общая дома 143 кв.м Цена на дом в Иваново

Цена дома теплый контур

Цена под чистовую отделку

8 090 000 рублей 8 980 000 рублей

астрой строительство продажа домов
астрой проекты домов
астрой строительство продажа домов
астрой строительство продажа домов

1. Фундамент

ЖБ Фундаментные блоки ФБС в три ряда на фундаментную подушку плиту Глубина фундамента 2.1 м

Снаружи гидроизоляция из мастики.

Сверху гидроизоляция  из 2-х слоев рубероида

2. Цоколь 

Кирпич керамический в три ряда ( кирпич полнотелый полуторный )

3. Перекрытие

Железо Бетонные плиты серии ПБ высотой 220 мм

4. Стены дома 

 

Несущие стены толщиной 380 мм в полтора кирпича , межкомнатные перегородки 120 мм

Материал стен керамический двойной камень

Так же можно заказать газосиликатный блок , силикатный кирпич, керамический блок

5. Перемычки

Оконные жб , межкомнатные уголок металлический грунтованный

6. Кровля 

Стропильная система из п/м 150х50 шаг 600мм, Гидроизоляционные пленки,

Контр обрешетка из бруса 30х50мм , Обрешетка п/м 25х150мм , 

Покрытие металлочерепица  с доборными элементами, софиты

Утепление 150 мм базальтовым утеплителем

7. Окна 

ПВХ профиль белый 70мм ; отливы металлические с наружной стороны белые

8. Дверь входная

Дверь входная металлическая утепленная

9. Фасад дома

Утепление 100 мм ( базальтовый, минеральный утеплитель ) + декоративная штукатурка /базавоя комплектация

Облицовочный кирпич  : слоновая кость. коричневый рустик , баварская кладка, красный рустик

8 090 000 рублей

Стоимость дома теплый контур фасад декоративная штукатурка

10. Электрика

Провод медный ВВГ 3*2,5 розетки, ВВГ 3*1,5 освещение.

Устанавливается счетчик, распределительный шкаф, автоматы

11. Сантехника

Разводка всего дома до запорной арматуры

( отопления радиаторы биметаллические цвет белый, водопровод, канализация )

12. Отделочные работы

Штукатурка стен ( гипсовая штукатурка цвет белый )

Стяжка пола пескобетонной смесью 50 мм по маякам 

В стоимость дома входит 

Материал, работа, услуги спец техники, 

Изменение планировки в проекте - бесплатно

8 980 700 рублей

Стоимость дома под чистовую отделку фасад декоративная штукатурка