Строительство продажа жилой коммерческой недвижимости 

+ 7 4932 34-34-98

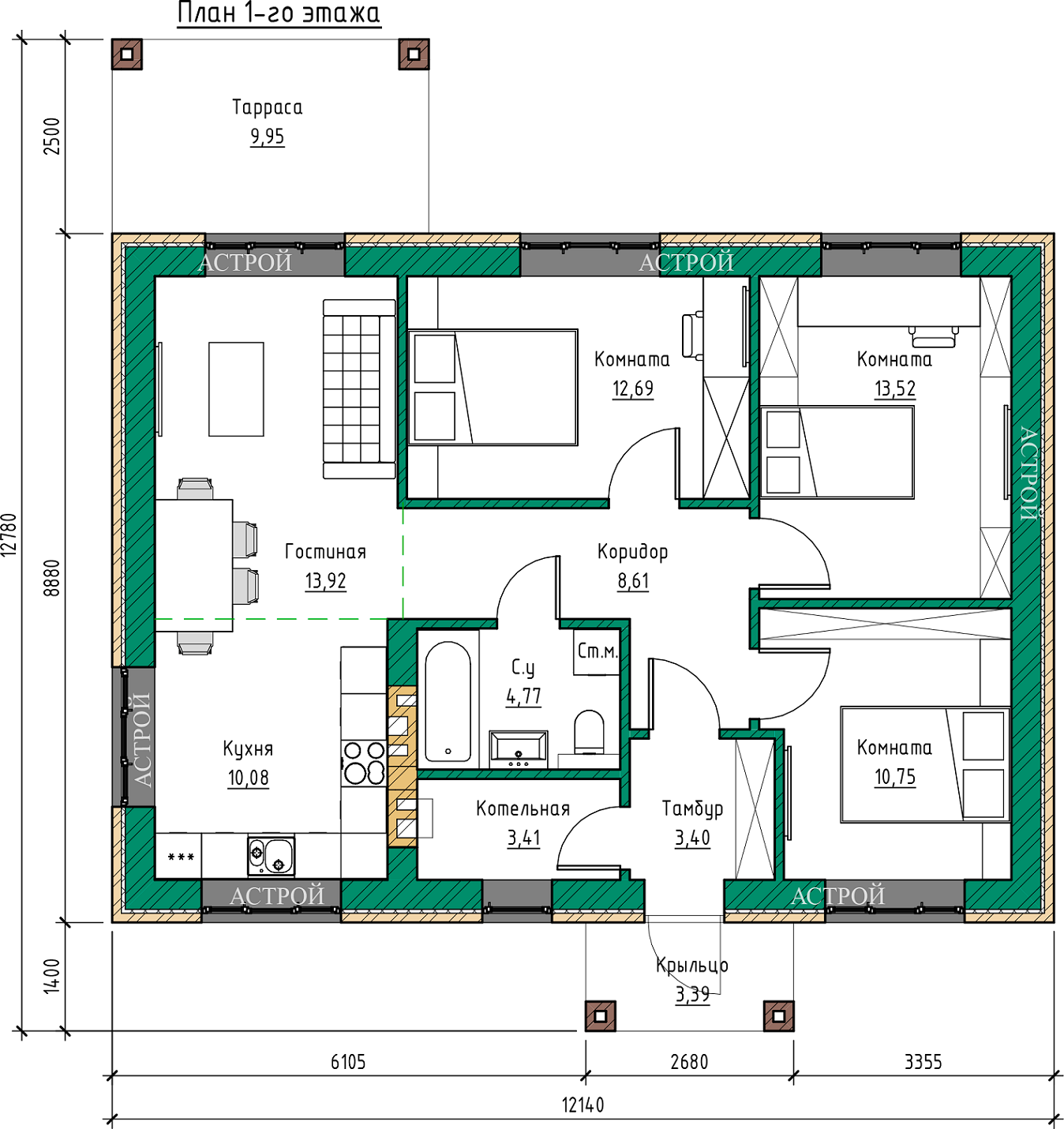
Проект одноэтажного дома АС-84

Проект одноэтажного дома АС-84 Общая площадь дома 84 кв.м Цены на строительство дома

Комплектация дома теплый контур

Комплектация дома под чистовую отделку

6 190 000 рублей 6 990 000 рублей

астрой строительство продажа домов
астрой строительство продажа домов
астрой строительство продажа домов
строительство дома под ключ в иваново Астрой

Коммерческое предложение

1.Фундамент

ЖБ Фундаментные блоки ФБС в три ряда на фундаментную подушку

плиту Глубина фундамента 2.1 м

Снаружи гидроизоляция из мастики.

Сверху гидроизоляция  из 2-х слоев рубероида

2.Цоколь 

Керамический кирпич 1.4 НФ полнотелый высотой три ряда , устройство продухов

3.Перекрытие

Железо Бетонные плиты серии ПБ высотой 220 мм

4.Стены дома

Керамический кирпич 2.1 НФ ( двойной камень ) толщина стены 380 мм , перегородки 250 мм, 120 мм

Силикатный кирпич 1.4 НФ толщина стены 380 мм , перегородки 250 мм 120 мм

Газосиликатный блок 300 мм , прегородки 150 мм, 100 мм

5.Перемычки

ЖБ перемычки на всех дверных, оконных проемах

6.Кровля 

Стропильная система из п/м 150х50 шаг 600мм, Гидроизоляционные пленки,

Контр обрешетка из бруса 30х50мм , Обрешетка п/м 25х150мм , 

Покрытие металлочерепица  с доборными элементами, софиты, водосточная система

7.Окна

ПВХ профиль белый 70 мм, отливы металлические белые с наружной стороны ( ламинация +25% )

8.Дверь входная

Дверь входная металлическая утепленная

9.Фасад дома 

1 вариант : Утепление 100 мм ( базальтовый, минеральный утеплитель ) + декоративная штукатурка /базавоя комплектация

2 вариант : Облицовочный кирпич1.4 нф  : слоновая кость. коричневый рустик , баварская кладка, красный рустик

6 190 000 Рублей

Стоимость  дома теплый контур фасад декоративная штукатурка

10.Электрика

Провод медный ВВГ 3*2,5 розетки, ВВГ 3*1,5 освещение.

Устанавливается счетчик, распределительный шкаф, автоматы

11.Сантехника

Разводка всего дома до запорной арматуры

( отопления радиаторы биметаллические цвет белый, водопровод, канализация )

12.Отделочные работы                  

Штукатурка стен ( гипсовая штукатурка цвет белый )

Стяжка пола пескобетонной смесью 80 мм по маякам на утеплитель 50 мм

В стоимость дома входит 

Материал, работа, услуги спец техники, 

Изменение планировки в проекте - бесплатно

6 990 000 Рублей

Стоимость  дома под чистовую отделку фасад декоративная штукатрка